Fuengirola

Te koop Herenhuis Costa Del Sol Fuengirola € 531.000,-

Ref.no: RSOR4672018
Price: € 531.000,-

1-7980e48d732b6fc85c14b43b94d2aa54.jpg

Te koop Herenhuis Costa Del Sol Fuengirola € 531.000,-

Bedrooms5
Salles de bains3
Living area230m²
Poolno
Gardenyes
Parkingyes
Built year2009
Setting: Town, Close To Schools, Urbanisation
Orientation: North East, South West
Condition: New Construction
Views: Urban, Street
Features: Fitted Wardrobes, Private Terrace, Ensuite Bathroom, Basement
Parking: Garage, Private
Ref.no: RSOR4672018
Price: € 531.000,-

Plus d'information ›››
Te koop Herenhuis Costa Del Sol Fuengirola € 531.000,-

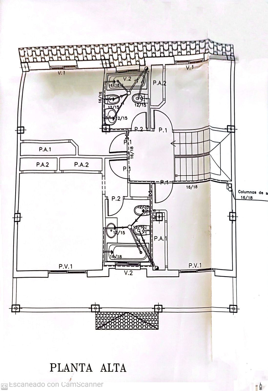
Unfinished single-family housing project on a 243m2 urban plot in Los Boliches (Fuengirola), with a fantastic location, in a very quiet residential area close to all services. According to the plan, on the ground floor we find a large living room, three bedrooms, a kitchen with access to a very large interior patio facing southwest. The upper floor is distributed in four bedrooms with built-in wardrobes and two full bathrooms. Solarium with panoramic views. The house has a constructed area of 230m2. It has a basement with the same size as the home. A home that you can finish by customizing it to your liking and down to the last detail. Don't miss this opportunity to live where you've always wanted!

Alternatives

1-7980e48d732b6fc85c14b43b94d2aa54.jpg

Te koop Herenhuis Costa Del Sol Mijas Costa € 595.000,-

Price € 595.000,-
Plus d'information
1-7980e48d732b6fc85c14b43b94d2aa54.jpg

Te koop Herenhuis Costa Del Sol San Pedro De Alcántara € 449.000,-

Price € 449.000,-
Plus d'information
1-7980e48d732b6fc85c14b43b94d2aa54.jpg

Te koop Herenhuis Costa Del Sol Estepona € 530.000,-

Price € 530.000,-
Plus d'information
1-7980e48d732b6fc85c14b43b94d2aa54.jpg

Te koop Herenhuis Costa Del Sol La Cala Golf € 550.000,-

Price € 550.000,-
Plus d'information
Disclaimer | Links
Casadelmar %lng_cookie_notice% %lng_close%
x