Cerros Del Aguila

Te koop Vrijstaande Villa Costa Del Sol Cerros Del Aguila € 7.000.000,-

Ref.no: RSOR4787254
Price: € 7.000.000,-

1-7980e48d732b6fc85c14b43b94d2aa54.jpg

Te koop Vrijstaande Villa Costa Del Sol Cerros Del Aguila € 7.000.000,-

Bedrooms9
Salles de bains7
Superficie du terrain1094m²
Poolyes
Gardenyes
Parkingyes
Built year1993
Setting: Close To Town, Urbanisation
Orientation: South East, South
Condition: Excellent, Good
Pool: Private
Climate Control: Air Conditioning, Hot A/C, Cold A/C, U/F Heating
Views: Sea, Mountain, Country, Panoramic, Garden, Pool
Features: Covered Terrace, Fitted Wardrobes, Private Terrace, Satellite TV, Gym, Sauna, Utility Room, Ensuite Bathroom, Marble Flooring, Bar, Barbeque, Double Glazing, Fiber Optic
Furniture: Fully Furnished
Kitchen: Fully Fitted
Garden: Private, Landscaped
Security: Gated Complex, Entry Phone
Parking: More Than One, Private
Category: Luxury, Resale
Ref.no: RSOR4787254
Price: € 7.000.000,-

Plus d'information ›››
Te koop Vrijstaande Villa Costa Del Sol Cerros Del Aguila € 7.000.000,-

This unique 9-bedroom villa for sale is located in Cerros del Aguila. Surrounded by tropical greenery and located on the top of Cerros del Aguila.
The house is set on a 2279m² plot that is covered in greenery, but it also includes 3 large plots with over 5 hectares with green areas offering a great opportunity for investors.
If all sold together: 7,000,000 €
The house: 4,500,000 €
Residential plot: 2,500,000 €
Commercial land: 1,000,000 €

It is south-facing and offers a 360-view over the Mediterranean Sea and the Mijas mountains. As you enter the home you will be greeted by a Moroccan-styled design that flows throughout the whole house. The expansive living room offers plenty of space to relax in.

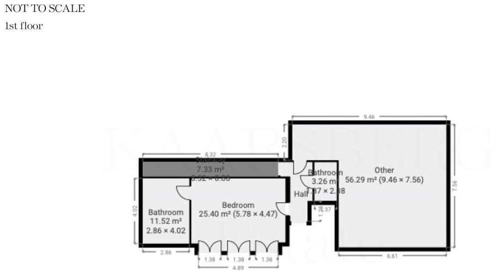
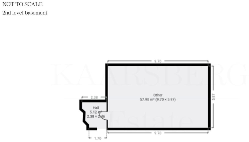
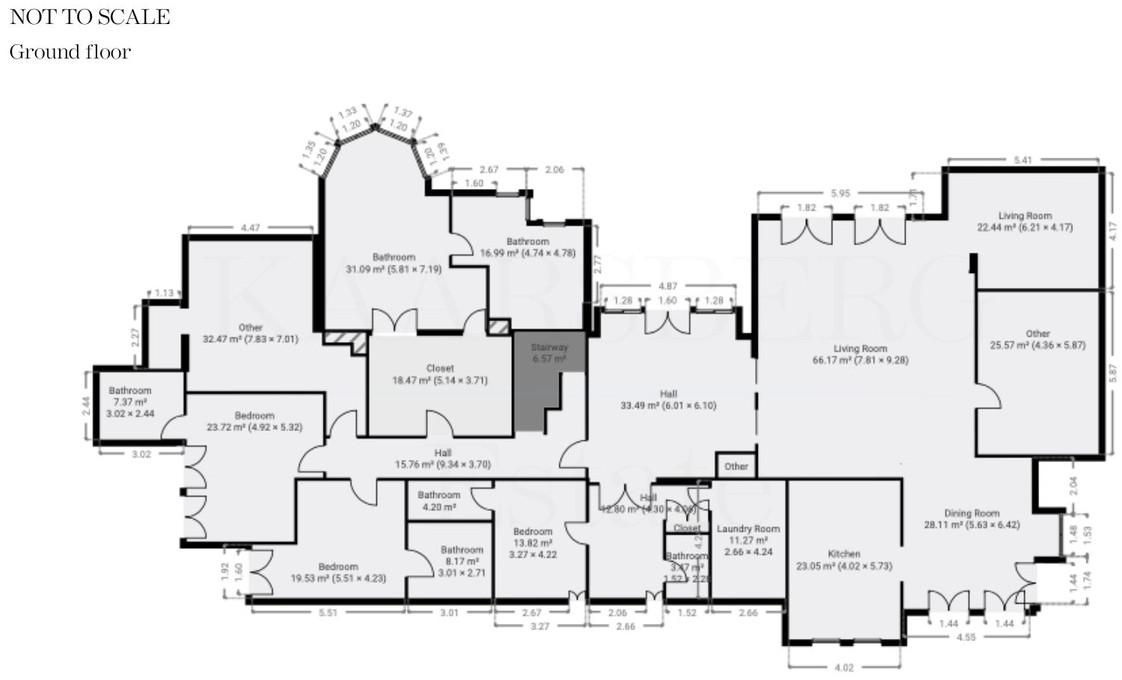
The house is laid out on 5 floors. The ground floor is where the kitchen and living room can be found as well as 3 bedrooms with en-suite bathrooms, a gym and an office.
The first floor is where the master bedroom is located which boasts handmade Moroccan art on the walls. This floor also includes a small guest toilet and a room that can be used as storage or a bedroom. The 2nd floor is a small room that can also be used as a bedroom or other.

The 1st basement level is where you will have access to the garage and various storage rooms. Lastly, the 2nd basement level is an indoor pool that is beautifully decorated with hand-painted walls that have stayed intact for over a decade.

Outside is where you can find two waterfalls one of them runs into the pool and the other one runs into a river that flows throughout the garden. Behind this waterfall is where you can find a secret bar room.
At the back of the garden there is a small stable and a little riding pitch.

The property is an investment opportunity.
The main house can be used as a clubhouse and the neighbouring plots have many options.
There is a helipad for this property.

Alternatives

1-7980e48d732b6fc85c14b43b94d2aa54.jpg

Te koop Vrijstaande Villa Costa Del Sol Sotogrande € 6.950.000,-

Price € 6.950.000,-
Plus d'information
1-7980e48d732b6fc85c14b43b94d2aa54.jpg

Te koop Vrijstaande Villa Costa Del Sol La Quinta € 6.950.000,-

Price € 6.950.000,-
Plus d'information
1-7980e48d732b6fc85c14b43b94d2aa54.jpg

Te koop Vrijstaande Villa Costa Del Sol Nueva Andalucía € 6.900.000,-

Price € 6.900.000,-
Plus d'information
1-7980e48d732b6fc85c14b43b94d2aa54.jpg

Te koop Vrijstaande Villa Costa Del Sol Los Flamingos € 6.900.000,-

Price € 6.900.000,-
Plus d'information
Disclaimer | Links
Casadelmar %lng_cookie_notice% %lng_close%
x