Guaro

Te koop Herenhuis Costa Del Sol Guaro € 219.000,-

Ref.no: RSOR5162440
Price: € 219.000,-

1-7980e48d732b6fc85c14b43b94d2aa54.jpg

Te koop Herenhuis Costa Del Sol Guaro € 219.000,-

Bedrooms2
Salles de bains1
Superficie du terrain88m²
Living area124m²
Poolno
Gardenyes
Parkingno
Ref.no: RSOR5162440
Price: € 219.000,-

Plus d'information ›››
Te koop Herenhuis Costa Del Sol Guaro € 219.000,-

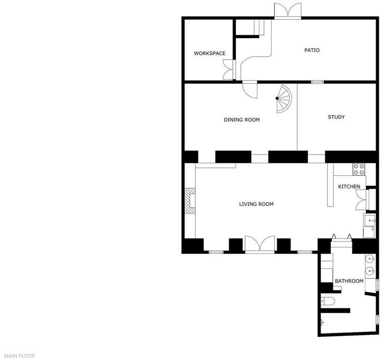
Step into this lovingly furnished home, carefully designed to combine comfort and atmosphere. In front of the house lies a generous terrace, perfect for enjoying the sun or long summer evenings.

The spacious yet cozy living room is the warm heart of the house, featuring a fireplace and a fully equipped open kitchen with bar. The bright, modern bathroom offers every luxury with a stylish double sink vanity, a spacious walk-in shower, a semi-separate toilet, and a washing machine.

An open passage leads to the dining area under an impressive five-meter-high ceiling. From here there is access to the patio and a separate office, which can also serve as an additional bedroom. A striking spiral staircase takes you upstairs, where two spacious bedrooms await. The master bedroom includes a walk-in closet and a French balcony, while the second bedroom is light, airy, and has direct access to a large terrace with beautiful views.

Altogether there are no less than five terraces, ensuring you can always find the perfect spot in the sun or shade. Trendy anthracite aluminum frames with double glazing, air conditioning in the living room and bedrooms, fiber-optic internet, and a security system complete the comfort of this home.

The house is located in Guaro, one of the most charming villages in the province of Málaga, right in the middle of the stunning Sierra de las Nieves natural park, with its wide network of hiking trails, and only 18 km from Marbella. Wander through the historic streets with their typical Andalusian character and enjoy the nearby restaurants, terraces, and supermarket.

In Guaro, all your senses come alive. Listen to the fountains and the Moorish music, admire the mountains and the whitewashed village, taste the almonds and olive oil, breathe in the fragrance of colorful flowers lining the streets, and above all, feel the magic of this unique place.

Alternatives

1-7980e48d732b6fc85c14b43b94d2aa54.jpg

Te koop Herenhuis Costa Del Sol Cómpeta € 210.000,-

Price € 210.000,-
Plus d'information
1-7980e48d732b6fc85c14b43b94d2aa54.jpg

Te koop Herenhuis Costa Del Sol Cómpeta € 200.000,-

Price € 200.000,-
Plus d'information
1-7980e48d732b6fc85c14b43b94d2aa54.jpg

Te koop Herenhuis Costa Del Sol Alozaina € 199.995,-

Price € 199.995,-
Plus d'information
1-7980e48d732b6fc85c14b43b94d2aa54.jpg

Te koop Herenhuis Costa Del Sol Torrox € 199.000,-

Price € 199.000,-
Plus d'information
Disclaimer | Links
Casadelmar %lng_cookie_notice% %lng_close%
x