Estepona

Te koop Herenhuis Costa Del Sol Estepona € 749.000,-

Ref.no: RSOR5223514
Price: € 749.000,-

1-7980e48d732b6fc85c14b43b94d2aa54.jpg

Te koop Herenhuis Costa Del Sol Estepona € 749.000,-

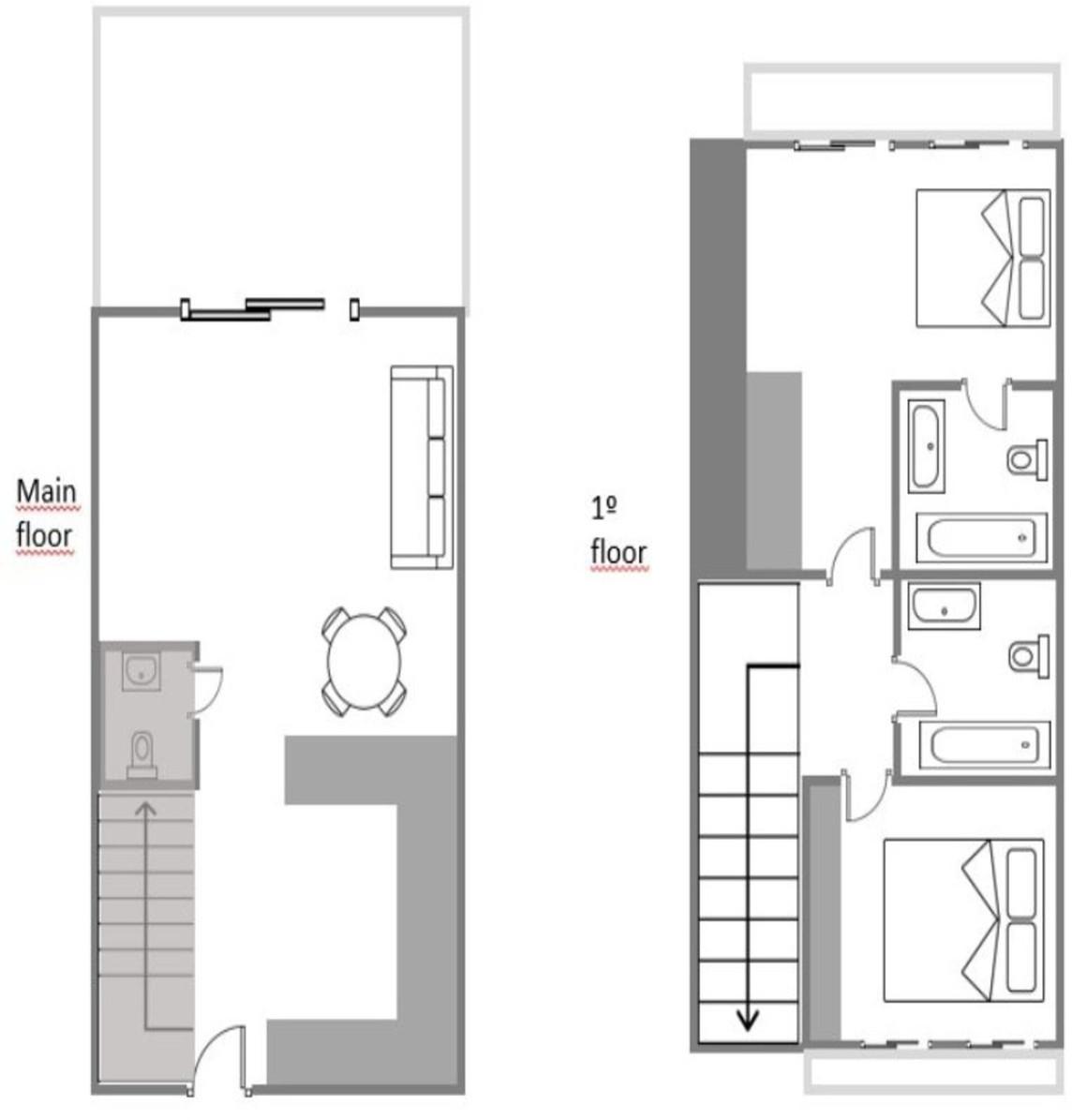
Bedrooms2
Salles de bains3
Superficie du terrain123m²
Poolyes
Gardenyes
Parkingno
Built year1985
Situation : Bord de mer, Proche des commerces, Proche de la mer, Proche du centre-ville, Proche des écoles, Proche du port de plaisance, Urbanisation
Orientatie: Zuid
Staat: uitstekend, recent gerenoveerd
Zwembad: gemeenschappelijk
Klimaatregeling: airconditioning, warme airconditioning, open haard
Uitzicht: zee, tuin, zwembad
Caractéristiques : Armoires encastrées, Proche des transports, Terrasse privée, Court de tennis, Salle de bains attenante, Double vitrage
Meubels: volledig gemeubileerd
Keuken: volledig ingericht
Tuin: Gemeenschappelijk, privé
Beveiliging: Gated Complex
Parkeren: privé
Hulpprogramma's: elektriciteit, drinkwater
Categorie: strand, wederverkoop
Ref.no: RSOR5223514
Price: € 749.000,-

Plus d'information ›››
Te koop Herenhuis Costa Del Sol Estepona € 749.000,-

LISTE EXCLUSIVE !

À quelques pas de la mer, cette maison de ville magnifiquement rénovée est située dans le quartier très prisé de Laguna Beach à Estepona.

Répartie sur deux étages, la propriété comprend 2 chambres, 2 salles de bains (dont une attenante), des toilettes pour invités, plusieurs terrasses, un jardin privé avec accès direct à la piscine commune et une place de parking incluse.
Nichée dans un petit complexe résidentiel calme avec jardins paysagers, 2 piscines et un accès privé à la plage par le sentier côtier Senda Litoral, cette maison est parfaite pour profiter du style de vie méditerranéen.

À seulement 10 minutes du centre-ville d'Estepona, à proximité des écoles internationales, des supermarchés, des services de santé et des restaurants. Accès facile à l'autoroute et à l'aéroport de Malaga.

➡️ Une opportunité rare, idéale comme résidence principale, résidence de vacances ou investissement locatif de premier ordre !

Alternatives

BOHACP1364_4240_V1_55FE.jpg

Te koop Herenhuis Costa Del Sol Estepona € 730.000,-

Price € 730.000,-
Plus d'information
1-7980e48d732b6fc85c14b43b94d2aa54.jpg

Te koop Herenhuis Costa Del Sol La Cala De Mijas € 753.000,-

Price € 753.000,-
Plus d'information
1-7980e48d732b6fc85c14b43b94d2aa54.jpg

Te koop Herenhuis Costa Del Sol La Cala Golf € 715.000,-

Price € 715.000,-
Plus d'information
1-7980e48d732b6fc85c14b43b94d2aa54.jpg

Te koop Herenhuis Costa Del Sol Marbella € 650.000,-

Price € 650.000,-
Plus d'information
Disclaimer | Links
Casadelmar %lng_cookie_notice% %lng_close%
x