Benalmadena

Te koop Herenhuis Costa Del Sol Benalmadena € 695.000,-

Ref.no: RSOR5308579
Price: € 695.000,-

1-7980e48d732b6fc85c14b43b94d2aa54.jpg

Te koop Herenhuis Costa Del Sol Benalmadena € 695.000,-

Bedrooms4
Salles de bains3
Superficie du terrain75m²
Living area187m²
Poolno
Gardenyes
Parkingyes
Built year1998
Setting: Town, Commercial Area, Close To Shops, Close To Sea, Close To Town, Close To Schools
Orientation: South West
Condition: Excellent, Recently Renovated
Climate Control: Air Conditioning, Hot A/C, Cold A/C
Views: Sea, Mountain, Urban
Features: Covered Terrace, Fitted Wardrobes, Near Transport, Private Terrace, Games Room, Storage Room, Ensuite Bathroom, Barbeque, Fiber Optic
Furniture: Fully Furnished
Kitchen: Fully Fitted
Garden: Private, Easy Maintenance
Security: Entry Phone
Parking: Garage, Private
Category: Resale, Contemporary
Ref.no: RSOR5308579
Price: € 695.000,-

Plus d'information ›››
Te koop Herenhuis Costa Del Sol Benalmadena € 695.000,-

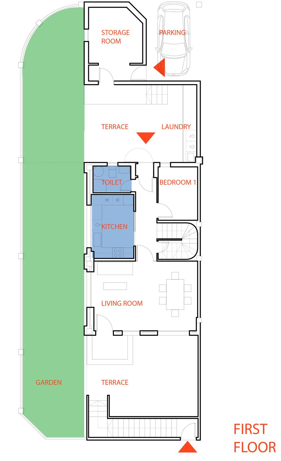
Renovated 4-Bedroom semi-detached townhouse for Sale in Benalmádena – Modern Comfort in a Prime Location!

Discover this beautifully renovated semi-detached townhouse offering practical living spaces and a modern, comfortable lifestyle. The home features 5 rooms, 3 bathrooms, and a contemporary fully equipped kitchen. One of the bedrooms is currently used as a guest room/home office.

Enjoy sunshine throughout the day on two large terraces (50 m²) facing east and west. The property also features a private garden with a play area, a practical laundry space, and a spacious multipurpose room with its own private entrance and natural light, ideal for use as a workspace, guest room, or storage.

The property features high-performance triple-glazed windows designed for maximum acoustic comfort and thermal insulation, ensuring energy efficiency and year-round comfort. Additional highlights include high-quality exterior wall insulation, a bioclimatic pergola with LED lighting, ceramic and wood flooring, and built-in wardrobes.

Ideally located just a short walk from public transport, schools, supermarkets, and with easy access to the highway, this is a perfect home for families in an unbeatable area!
Possibility to expand with an independent unit in the basement of approximately 60 m².

Windows: EUROFUTUR system by KÖMMERLING, PL ULTRA N glass 4mm/20mm/6mm (triple layer for maximum acoustic and thermal insulation)

Bioclimatic pergola (8x4 m) with reinforced structure, LED lighting, by Solisysteme, valued at €25,000.

Front terrace pergola awning by the German brand Markilux.

Kitchen renovated in 2024, including new countertops, cabinets, cooking hob, refrigerator, and dishwasher, all Bosch brands.

Washer (LG) and dryer (Bosch) from 2026 and 2022.

Exterior wall insulation: Supafil 034, mineral rock wool blown in:
Ensures thermal comfort for the house or property. Eliminates the “cold wall” effect and guarantees even temperature distribution inside.
SUPAFIL 034 provides both thermal and acoustic comfort.
Eco-friendly product, reduces CO2 emissions.
Moisture-resistant, water-repellent, not hygroscopic.
SUPAFIL 034 does not support the growth of fungi or bacteria.

Recurring costs (year 2024):

Garbage collection fee: €190/year
Property tax (IBI): €747/year
Community fee: €45/month

According to decree 218/2005 on consumer information in the sale and rental of housing in Andalusia, notarial, registry, transfer tax (ITP), financial fees, and other costs inherent to the sale are not included in the price.

Alternatives

BOHAAP4845_26340_V1_8876.jpg

Te koop Herenhuis Costa Del Sol Fuengirola € 619.000,-

Price € 619.000,-
Plus d'information
BOHAAP4770_24773_V1_CA53.jpg

Te koop Herenhuis Costa Del Sol La Cala De Mijas € 753.000,-

Price € 753.000,-
Plus d'information
BOHACP1351_4121_V1_A088.jpg

Te koop Herenhuis Costa Del Sol La Cala De Mijas € 675.000,-

Price € 675.000,-
Plus d'information
BOHACP1374_4316_V1_45E1.jpg

Te koop Herenhuis Costa Del Sol Fuengirola € 645.000,-

Price € 645.000,-
Plus d'information
Disclaimer | Links
Casadelmar %lng_cookie_notice% %lng_close%
x