Coín

Te koop Finca - Cortijo Costa Del Sol Coín € 420.000,-

Ref.no: RSOR5314471
Price: € 420.000,-

1-7980e48d732b6fc85c14b43b94d2aa54.jpg

Te koop Finca - Cortijo Costa Del Sol Coín € 420.000,-

Bedrooms5
Salles de bains3
Superficie du terrain6750m²
Living area173m²
Poolyes
Gardenyes
Parkingyes
Built year2004
Setting: Country
Orientation: East
Condition: Fair
Pool: Private
Climate Control: Air Conditioning, Fireplace
Views: Mountain, Country
Features: Covered Terrace, Fitted Wardrobes, Near Transport, Private Terrace, Guest House, Ensuite Bathroom, Double Glazing
Furniture: Not Furnished
Kitchen: Fully Fitted
Garden: Private
Security: Gated Complex, Alarm System
Parking: Open, Private
Utilities: Electricity, Drinkable Water
Category: Resale
Ref.no: RSOR5314471
Price: € 420.000,-

Plus d'information ›››
Te koop Finca - Cortijo Costa Del Sol Coín € 420.000,-

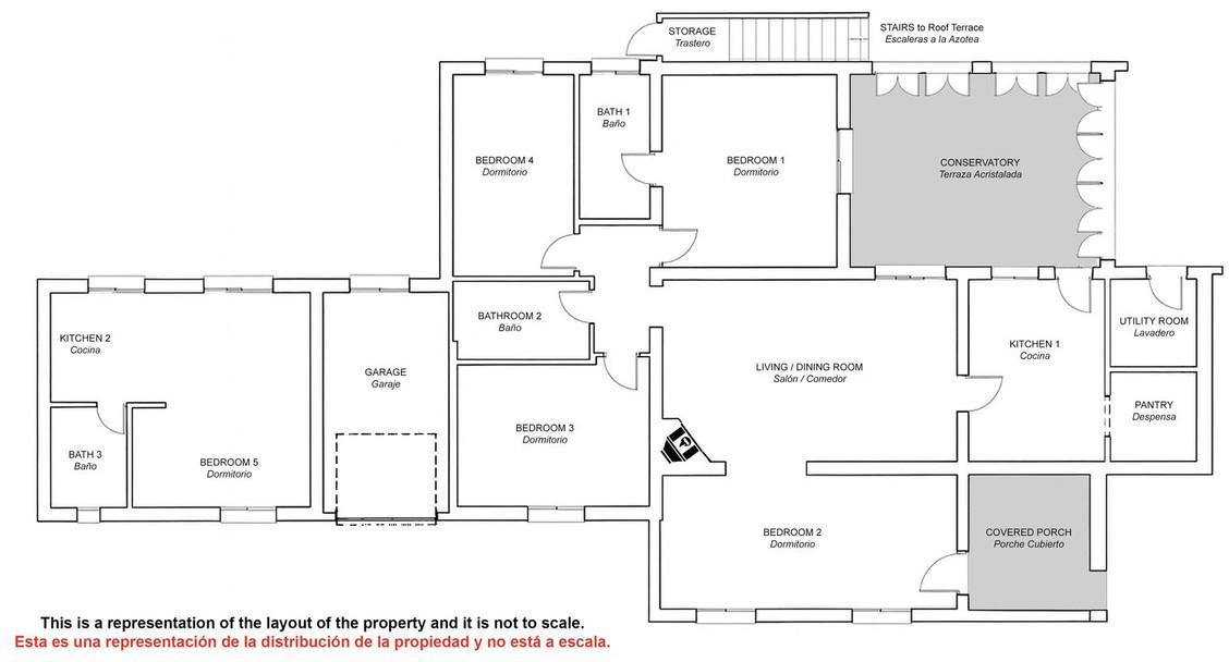
Set in a peaceful location with beautiful open views over the village of Alhaurín el Grande, this delightful single-level country home offers the perfect blend of privacy, comfort and Andalusian charm.

The main house features:
• A fully equipped kitchen with direct access to a large terrace
• A separate pantry
• A bright living room
• A dining room with fireplace, perfect for cosy evenings
• 3 comfortable bedrooms
• 2 bathrooms, including an en-suite in the master bedroom
• A separate utility room

✨ A true highlight: the covered terrace
The kitchen opens onto a spacious covered terrace/veranda that serves as an additional living area. Currently used as a dining space, it can be fully opened during summer, allowing year-round enjoyment.

Large glass doors offer stunning views of the swimming pool, garden and surrounding countryside.

???? Independent guest apartment
The property also benefits from a charming guest apartment with kitchenette and bathroom — ideal for visiting family and friends or as a potential rental opportunity.

???? Great potential for extension
At the rear of the house, a large storage room — currently used for gardening equipment — could easily be incorporated into the main house for additional living space.

Originally, the house featured 3 bedrooms, a separate dining room and a living room, meaning the original layout can be reinstated if desired.

???? Ideal location:
• 4.5 km to La Trocha shopping centre
• 6 km to Alhaurín el Grande town centre
• Approx. 1 km to the A355
• 30 minutes to Málaga Airport

This property offers the perfect combination of countryside tranquillity and convenient access to amenities — ideal as a permanent residence or holiday retreat under the Andalusian sun.

Alternatives

1-7980e48d732b6fc85c14b43b94d2aa54.jpg

Te koop Finca - Cortijo Costa Del Sol Casarabonela € 395.000,-

Price € 395.000,-
Plus d'information
1-7980e48d732b6fc85c14b43b94d2aa54.jpg

Te koop Finca - Cortijo Costa Del Sol Alhaurín El Grande € 490.000,-

Price € 490.000,-
Plus d'information
1-7980e48d732b6fc85c14b43b94d2aa54.jpg

Te koop Finca - Cortijo Costa Del Sol Casares € 350.000,-

Price € 350.000,-
Plus d'information
1-7980e48d732b6fc85c14b43b94d2aa54.jpg

Te koop Finca - Cortijo Costa Del Sol Coín € 395.000,-

Price € 395.000,-
Plus d'information
Disclaimer | Links
Casadelmar %lng_cookie_notice% %lng_close%
x